Referenzen
Zu unseren Referenzkunden gehören renommierte Unternehmen wie der TÜV Hessen, der TÜV SÜD, Kraftwerke Mainz Wiesbaden, FAAG, Heraeus Site GmbH, sowie Kommunen im gesamten Rhein-Main Gebiet, neben einer großen Anzahl zufriedener Privatkunden.
Bestandsaufnahmen
Aufmaß von bestehenden Gebäuden in der Genauigkeitsstufe II und 3D Digitalisierung. Generierung von Grundrissen, Schnitten, Ansichten und 3 D Visualisierungen als Grundlage für weitere Planungsschritte.
Kindertagesstätte
Aufmaß, Genauigkeitsstufe II; Digitalisierung in 3D, Generierung von Grundrissen, Schnitten, Ansichten und 3D Visualisierungen
Bürgerhaus
Aufmaß, Genauigkeitsstufe II; Digitalisierung in 3D, Generierung von Grundrissen, Schnitten, Ansichten und 3D Visualisierungen
Kindertagesstätte
Aufmaß, Genauigkeitsstufe II; Digitalisierung in 3D, Generierung von Grundrissen, Schnitten, Ansichten und 3D Visualisierungen
Gymnastikhalle
Aufmaß, Genauigkeitsstufe II; Digitalisierung in 3D, Generierung von Grundrissen, Schnitten, Ansichten und 3D Visualisierungen
Einfamilienwohnhaus in Butzbach
Aufmaß, Genauigkeitsstufe II; Digitalisierung in 3D, Generierung von Grundrissen, Schnitten, Ansichten und 3D Visualisierungen
Fachwerkhaus in Altenstadt
Aufmaß, Genauigkeitsstufe II; Digitalisierung in 3D, Generierung von Grundrissen, Schnitten, Ansichten und 3D Visualisierungen
Neubauprojekte
Neubauprojekte mit der Durchführung der Leistungsphasen 1-8 der HOAI.
Mehrfamilienwohnhaus in Frankfurt am Main
LP 1-8 der HOAI
Villa Quadro I in Frankfurt am Main
LP 1-8 der HOAI
Stadtvilla in Frankfurt am Main
LP 1-8 der HOAI
Kletterturm in Frankfurt am Main
LP 1-8 der HOAI
Ersatzneubau Kurt-Schumacher-Schule in Karben
LP 1-8 der HOAI
Hanflabyrinth in Pohl-Göns Butzbach
LP 1-4 der HOAI
Baugenehmigung für 5 Jahre
Mehrfamilienhaus in Frankfurt am Main
LP 1-8 der HOAI
Villa Quadro II in Frankfurt am Main
LP 1-3 der HOAI
Sanierungen von Bestandsgebäuden
Sanierungsprojekte mit der Durchführung der Leistungsphasen 1-8 der HOAI.
Sanierung denkmalgeschütztes Mehrfamilienwohnhaus in Frankfurt am Main
LP 1-8 der HOAI
Komplettsanierung Hinterhaus in Frankfurt am Main
LP 1-8 der HOAI
Tiefgarage Dom Römer in Frankfurt am Main
Unterstützung der Bauleitung
Umnutzung eines Fitnessstudios und Wohnungen in eine Gemeinschaftsunterkunft
LP 1-8 der HOAI
Dachaufstockung und Ausbau Dachgeschoss mit Fassadensanierung und PV-Anlage in Butzbach
LP 1-8 der HOAI
Sanierung denkmalgeschützes Mehrfamilienhaus in Frankfurt am Main
LP 1-8 der HOAI
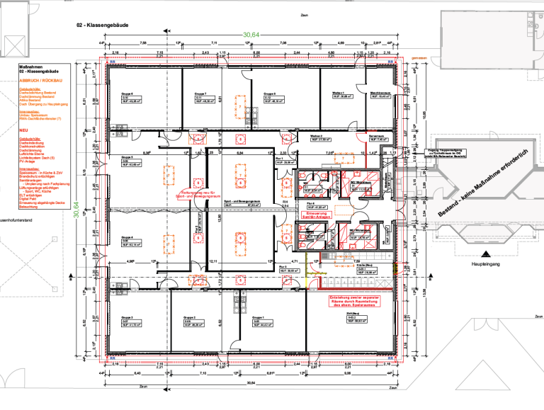
Sanierung Teilgebäude einer Schule als Generalplaner
LP 1-4 der HOAI
Sanierung Teilgebäude einer Schule als Generalplaner
LP 1-4 der HOAI
Energetische Sanierung denkmalgeschütztes Hochbauamt in Usingen
LP 1-8 der HOAI
Energieberatung, Erstellung eines iSFP und Förderantragstellung und - abwicklung BAFA BEG EM
Komplettsanierung eines Einfamilienwohnhauses mit Dachaufstockung, Neubau einer Garage in Butzbach
LP 1-8 der HOAI
Energieberatung, Erstellung eines iSFP und Förderantragstellung und - abwicklung BAFA BEG EM
Sanierungen von Kindertagesstätten
Sanierungen von Kindertagesstätten mit der Durchführung der Leistungsphasen 1-8 der HOAI.
Sanierungskonzept und Sanierung einer Kindertagesstätte
LP 1-8 der HOAI
Energetische Sanierung, zwei Anbauten in HRB, Raumanpassung einer Kindertagesstätte
LP 1-9 der HOAI
Energieberatung, Erstellung iSFP, Förderantragstellung und -abwicklung KfW EH 55
Sanierungskonzept, Sanierungsplanung und Bauleitung einer Kindertagesstätte
LP 1-8 der HOAI
Sanierungskonzept, Sanierungsplanung und Bauleitung einer Kindertagesstätte
LP 1-8 der HOAI
Vorsorgliche Beweissicherung
Das vorsorgliche Beweissicherungsverfahren ist weniger nur eine Beweissicherung als vielmehr eine vorbeugende Maßnahme, um mögliche Schäden zu vermeiden. Unter Berücksichtigung der DIN 4123 geht es konkret um die Absicherung angrenzender Gebäude und auch Grundstücke, noch bevor die Baumaßnahmen beginnen.
Kraftwerke-Mainz Wiesbaden
Vorsorgliche Beweissicherung
TÜV SÜD in Eschborn
Vorsorgliche Beweisscherung
Energieberatung
Eine Energieberatung für Wohngebäude soll Eigentümer, Mieter und Pächter sowie Nießbrauchsberechtigte bei der Entscheidung unterstützen, wie die Energieeffizienz eines Wohngebäudes sinnvoll verbessert werden kann. Die Energieberatung leistet somit einen wichtigen Beitrag zur Erfüllung der Ziele des Klimaschutzes.
Energieberatungen für Nichtwohngebäude im Bestand und im Neubau nach DIN 19599, die es ermöglichen Energieeffizienz und erneuerbare Energien in den Planungs- und Entscheidungsprozess einzubeziehen und damit die Effizienzpotentiale zum individuell günstigsten Zeitpunkt auszuschöpfen.
Bürgerhaus in Unter-Schmitten Nidda
Energieberatung und Erstellung eines Energieberatungsberichtes für Nichtwohngebäude
Kindertagesstätte in Ober-Schmitten Nidda
Energieberatung und Erstellung eines Energieberatungsberichtes für Nichtwohngebäude
Bürgerhaus in Ober-Schmitten Nidda
Energieberatung und Erstellung eines Energieberatungsberichtes für Nichtwohngebäude
TSV Halle in Ebersgöns Butzbach
Energieberatung und Erstellung eines Energieberatungsberichtes für Nichtwohngebäude
Kindertagesstätte in Nidda
Energieberatung und Erstellung eines Energieberatungsberichtes für Nichtwohngebäude
denkmalgeschützes Hochbauamt in Usingen
Energieberatung und Erstellung eines Energieberatungsberichtes für Nichtwohngebäude
Zweifamilienwohnhaus in Steinfurth Bad Nauheim
Energieberatung und Erstellung eines individuellen Sanierungsfahrplans (iSFP) für Wohngebäude, Förderantragstellung und -abwicklung BEG EM für Dachsanierung und Dachflächenfenster
Sanierung von Gewerbebauten
Gewerbeimmobilen sind Immobilien, die ganz oder überwiegend zu gewerblich oder gewerblich-selbständigen Zwecken dienen.
TÜV SÜD in Frankfurt am Main
Bauliche Standortbetreuung mit mehreren Umbauten
Renault Autohaus in Dinkelsbühl
Sanierungskonzepte der Standortsanierung
TÜV SÜD in Eschborn
Sanierungskonzept
Umbau der Vetterpassage in Mannheim
TÜV Hessen ind Frankfurt am Main
Sanierung des Standortes


















































































